안녕하세요.
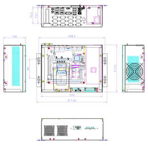
오늘은 현재 6U 서버 제작 과정을 기록하려고 합니다. (#AI서버 #고성능GPU서버)
#1U #2U #3U #4U #5U #6U
1U = 44.4mm
6U = 266.4mm
기존에 저희는 4U 수냉식 서버까지 제작을 해 보았는데,
이번에 다른 제작 의뢰를 맡게되어, 6U 수냉식 서버를 제작하게 되었습니다.
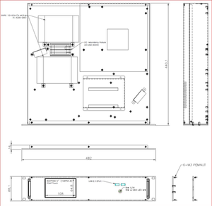
저희는 6U에 맞춰서 마구잡이로 제작하기보다는 , 발열 및 공기 순환, 환경적인 면을 고려하여, 설계 & 제작합니다.
#고성능GPU가 들어가는 서버이다보니, #라디에이터를 효율적으로 순환시키고, #쿨링을 추가적으